
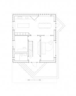
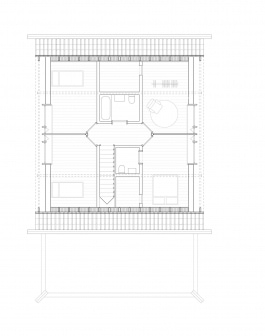
* Project text: The basis for the conversion and renovation was a building from the early 1960s, which was in a poor condition. As part of the renovation, the façade was structured horizontally and covered with a solid insulating roughcast. Although the changes gave the building a new, more modern expression, some of the original design intentions from the 1960s remained recognizable. It was important to address the original expression in order to harmoniously combine old and new components. By adapting the floor plan, it was possible to make much more efficient use of the existing space. The eat-in kitchen acts as a counterpart to the veranda in front and conveys the spatial qualities of open-plan living. Large wooden windows frame the view into the distance and the garden. By converting the top floor, the number of rooms could be doubled with the same cubature. The targeted placement of the openings created interesting views and a new spaciousness, despite the rather small rooms.





01 Why is the project particularly relevant for PIONIRA?
Although the clients needed more space, it was possible to retain the compact volume and its structure. The retained structure, the better insulated building envelope and the compact volume enabled an ecologically and economically sustainable building.
02 What have you learned from the project? What challenges did you encounter, and how did you solve them?
When you work with existing buildings, you sometimes have to give up some of your preferences and make compromises. As architects, we were of course aware of this. But in some situations it was difficult to show the client that some of their wishes could not be realized with the existing basis. We always tried to present many different solutions and put ourselves in their shoes. That was an important process. The dialog with the client strengthened the project on many levels and contributed a lot to how it turned out.
03 What advice could you provide, based on the project?
For conversions, it is advisable to find a way to work with the existing static structure. To this end, it is worth carrying out extensive soundings before planning in order to record the static structure as well as possible. Nobody has X-ray vision and simply assuming something can be expensive. As soon as the desired use can only be accommodated with extensive structural changes, a conversion can quickly become unsustainable on various levels. In some cases, this may also mean that it is better to deconstruct and replace existing buildings or parts of them. It is important to assess each situation with its specific parameters individually.
04 How would you like to build in the future?
We want to become even more aware of what our interventions and building in general really mean in terms of greenhouse gases and environmental sustainability. It is sometimes noticeable that the media, architects and clients are still too emotionally driven in their assessments. And we often catch ourselves doing this. The mere feeling that something could be ecologically sustainable can be deceptive. We would like to work more scientifically in this respect. We find it worrying when projects are perceived as better than possibly more ecological projects simply because they conform to the current, generally accepted ecological image. We do not want to forget that, in addition to ecological materials, the most important contribution to ecological sustainability is made by durable construction methods, flexible structures, good urban planning and architecture that is carefully integrated into the context. Only buildings that meet all these requirements are sustainable and will be accepted over several generations.
*Photos by Back Simonsen




Name: Wohnhaus im Grienacker
Location: Bättwil, CH
Text and images by: Back Simonsen
Type: Places
Posted: March 2024
Categories: architect, localism, raw materials, reuse, Switzerland
CONTACT
We're based in Berlin for most of the year. Our mobile office likes to follow our European vision, traveling around to where PIONIRA takes us.
CONTACT
Instagram →
Facebook →
Spotify →
More →
© 2021 PIONIRA
Imprint. All rights reserved.
Privacy Policy